00Intention

DEVO
Tout à portée de main

Le projet DEVO est un véritable projet de restaurant à Marseille sur lequel nous étions en compétition par groupe de 4. Ce projet nous a permis de développer les partis pris dans un restaurant et les points forts afin qu'il devienne l'identité de la marque. Les flux de clients, l'organisation des espaces, et des ambiances lumineuses immersives ont été pensés pour offrir une expérience utilisateur unique.

« L'essentiel, sans attendre. »
01 · Chapitre

Concept architectural

Anette, passionnée de repas conviviaux, recrée dans son restaurant l'ambiance chaleureuse de ses dimanches en famille. Le client choisit et cuit lui-même sa viande sur une assiette chauffante, accède à un mur d'épices pour personnaliser son plat, et sélectionne un vin parmi ceux suspendus au plafond. L'architecture ouverte encourage le partage, offrant une expérience unique et authentique.

Concept — vue 3

Pour ce projet, l'assiette Piv est le concept central qui ressort. Nous avons donc réalisé trois mobiliers sur mesure pour correspondre à notre storytelling : une cave à viande visible depuis toutes les assises, un présentoir à vins permettant de choisir son vin directement depuis sa place, et un mur en menuiserie regroupant toutes les épices afin de lier les saveurs directement à la table.

Concept — vue 1

Nous avons modélisé l'ensemble du projet en 3D pour mieux visualiser l'agencement des espaces et les flux de circulation. Chaque élément, des mobiliers sur mesure à la disposition des zones de service, a été intégré dans les rendus. Cela a permis d'optimiser la coordination avec les autres membres du groupe et de proposer une présentation visuelle immersive au jury. La modélisation a été réalisée avec SketchUp et finie via Vray pour un rendu photoréaliste qui souligne les matières et l'éclairage.

Concept — vue 2
02 · Chapitre

Parcours usager

03 · Chapitre

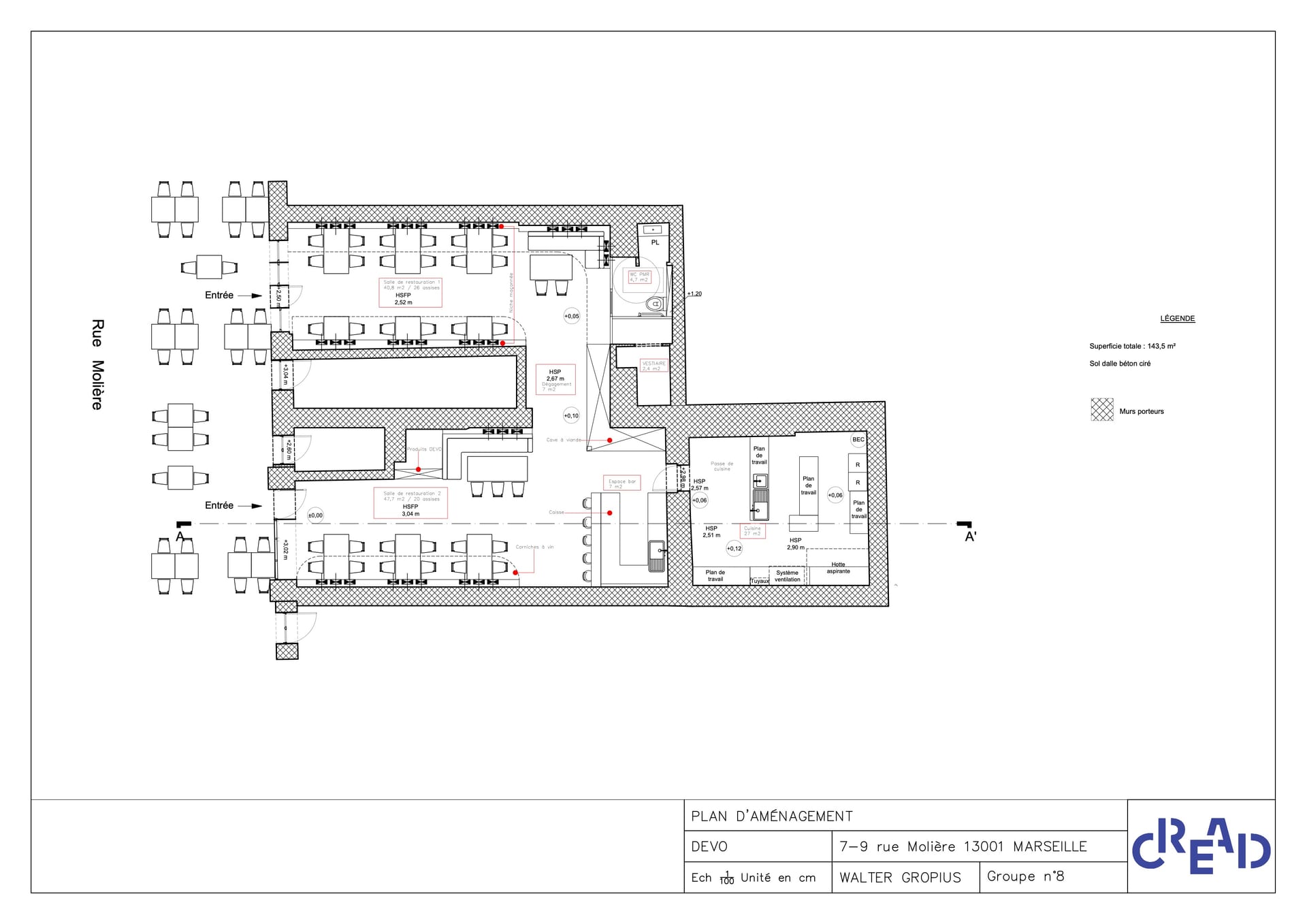
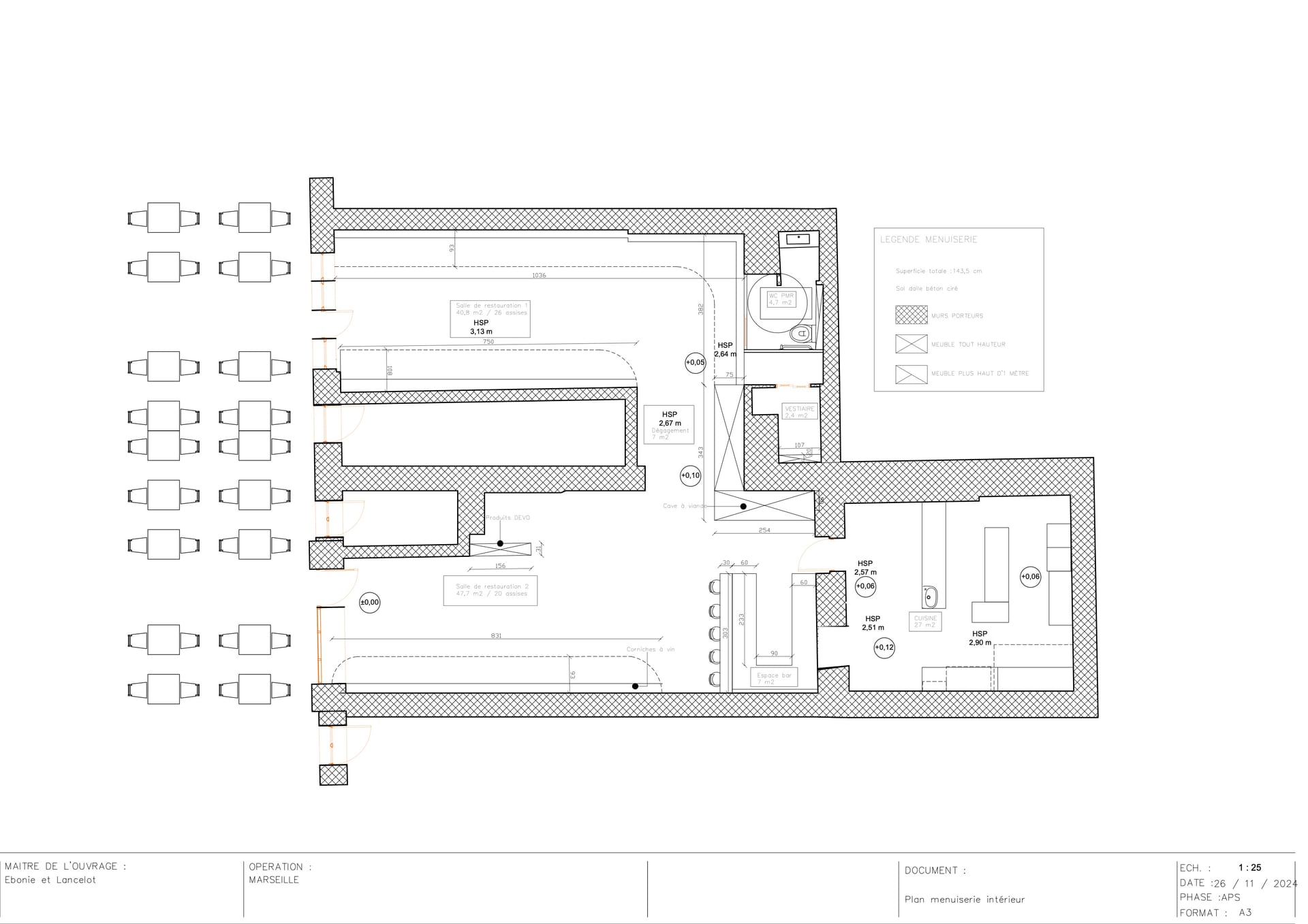
Plan et plan technique

L'ensemble des plans du projet, du plan EDL jusqu'aux coupes colorimétriques, traduit la rigueur technique et les choix d'aménagement retenus pour le restaurant DEVO.

Faire défiler

Plan EDL fourni
Plan EDL fourni
Plan démolition
Plan démolition
Plan d'aménagement
Plan d'aménagement
Plan menuiserie d'intérieur
Plan menuiserie d'intérieur
Plan VMC et plomberie
Plan VMC et plomberie
Plan électrique
Plan électrique
Plan éclairagiste
Plan éclairagiste
Coupe AA' colorimétriques
Coupe AA' colorimétriques
04 · Chapitre

Détail sur-mesure

Mise en œuvre — Pour ce projet, la réalisation de détails précis sur le mobilier était essentielle afin d'estimer le coût total et de respecter le budget du client. Ces plans ont permis non seulement d'évaluer le prix de mise en œuvre des trois éléments sur mesure, mais aussi de garantir leur faisabilité technique. L'objectif principal était d'assurer, grâce à ces plans, que chaque pièce pouvait être réalisée concrètement tout en restant en adéquation avec les attentes et les contraintes budgétaires.

Faire défiler

Cave à viande plan et élévation
Cave à viande plan et élévation
Cave à viande élévation et coupe
Cave à viande élévation et coupe
Corniche à vin
Corniche à vin
Niche sur-mesure plan et élévation
Niche sur-mesure plan et élévation
Niche sur mesure coupe
Niche sur mesure coupe

GalerieVue d'ensemble

Images clés

Salle 1 · entrée
Salle 1 · entrée
Bar · accès cuisine
Bar · accès cuisine
Cave à viande
Cave à viande
Salle 2
Salle 2
Table d'angle
Table d'angle
Niche sur-mesure
Niche sur-mesure
Salle 2 · 2ème entrée
Salle 2 · 2ème entrée

Projet suivant

Résonance

Retour à tous les projets