00Intention

Biarritz

Ce projet de rénovation d'une maison a permis d'étudier les interactions entre les espaces intérieurs et extérieurs. J'ai mené une analyse contextuelle approfondie pour proposer des solutions spatiales respectant les besoins fonctionnels et esthétiques de la famille.

01 · Chapitre

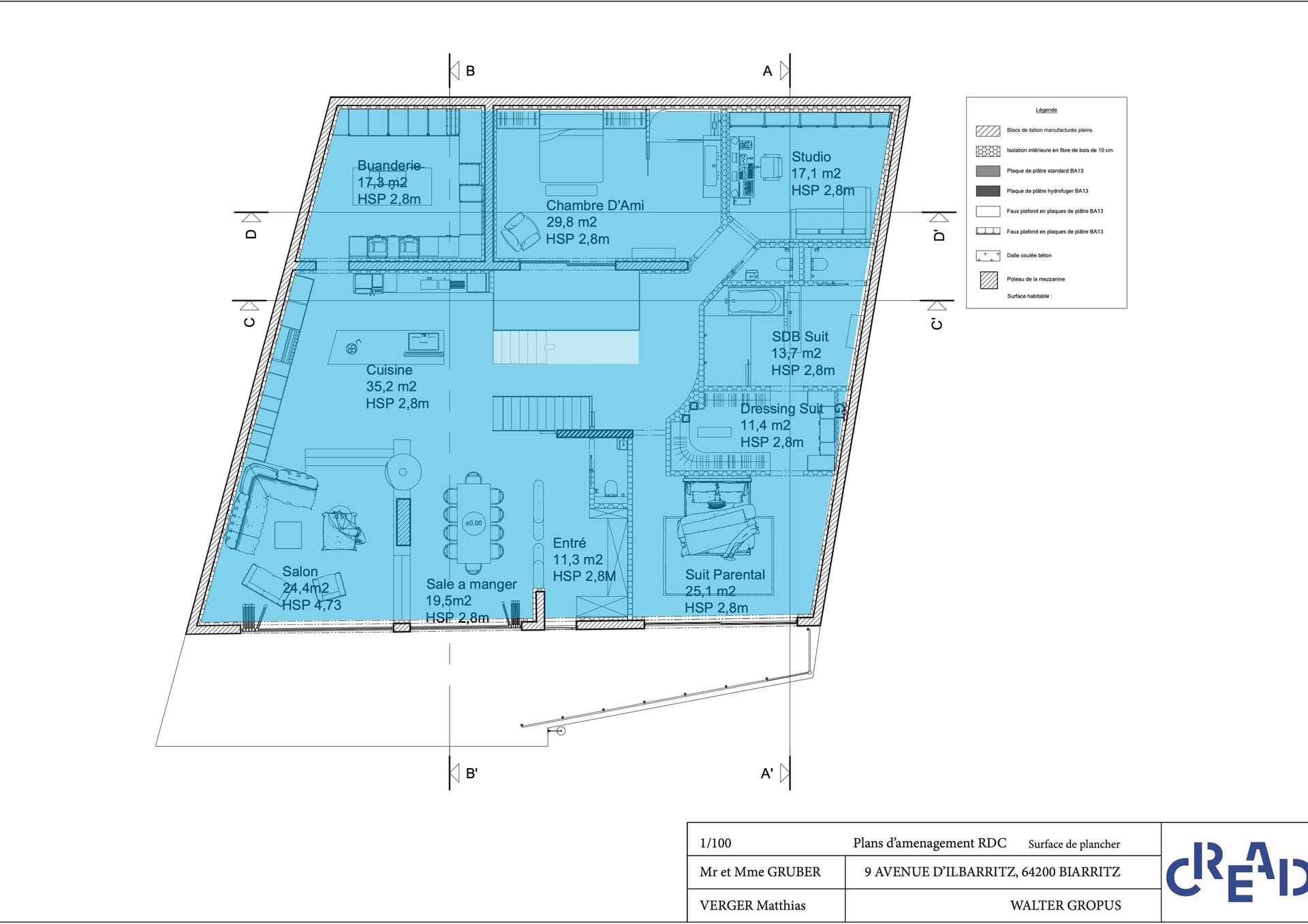
Plan et Plan technique

La réalisation de plans techniques complets, incluant notamment la VMC, la plomberie, l'électricité, le chauffage, les cloisons en plaques de plâtre ainsi que le mobilier.

Il s'agissait de notre première année de travail sur logiciel de conception assistée par ordinateur. L'ensemble des documents graphiques a été produit sur AutoCAD, permettant d'aborder la production de plans techniques et de développer une méthodologie de dessin numérique appliquée à un projet architectural.

02 · Chapitre

Détail mobilier

Ce dressing sur mesure a été pensé pour optimiser l'espace tout en répondant aux besoins spécifiques du client. Chaque élément a été conçu avec précision, alliant fonctionnalité et esthétique.

Les finitions du dressing en bois foncé, associées à des touches de métal noir, créent une ambiance élégante et intemporelle.

L'éclairage LED intégré le long des tringles met en valeur les vêtements tout en apportant une lumière douce et homogène.

Ce dressing illustre mon approche : créer des espaces uniques, alliant design sur mesure et solutions pratiques adaptées à chaque intérieur.

04 · Chapitre

Permis de construire

Dans le cadre de notre formation, les professeurs nous ont amenés à réaliser notre tout premier permis de construire. Cet exercice constituait une étape fondamentale dans l'apprentissage du métier, nous confrontant aux exigences réglementaires, administratives et graphiques propres à ce type de dossier. Il nous a permis de comprendre la rigueur attendue dans la constitution des pièces, tout en développant notre capacité à traduire un projet architectural de manière claire, précise et conforme aux normes en vigueur.

Faire défiler

Plan — page 1/19
01 / 19
Plan — page 2/19
02 / 19
Plan — page 3/19
03 / 19
Plan — page 4/19
04 / 19
Plan — page 5/19
05 / 19
Plan — page 6/19
06 / 19
Plan — page 7/19
07 / 19
Plan — page 8/19
08 / 19
Plan — page 9/19
09 / 19
Plan — page 10/19
10 / 19
Plan — page 11/19
11 / 19
Plan — page 12/19
12 / 19
Plan — page 13/19
13 / 19
Plan — page 14/19
14 / 19
Plan — page 15/19
15 / 19
Plan — page 16/19
16 / 19
Plan — page 17/19
17 / 19
Plan — page 18/19
18 / 19
Plan — page 19/19
19 / 19

GalerieVue d'ensemble

Images clés

Je réalise la modélisation et la production de rendus 3D réalistes en utilisant les logiciels SketchUp et Twinmotion. Ces outils me permettent de donner vie aux projets en offrant une visualisation immersive et précise des espaces. Chaque projet intègre des volumes fidèles, un éclairage naturel et artificiel soigné, et des matériaux détaillés.

Tête d'affiche
01 — Cover
Ambiance
02 — Ambiance
Détail
03 — Détail
Matière
04 — Matière

Projet suivant

Aurora

Retour à tous les projets